商铺名称:西安亚川电力科技有限公司
联系人:仵经理(小姐)
联系手机:
固定电话:
企业邮箱:13891834587@163.com
联系地址:西安市翠花南路60号
邮编:710061
联系我时,请说是在五金机电网上看到的,谢谢!
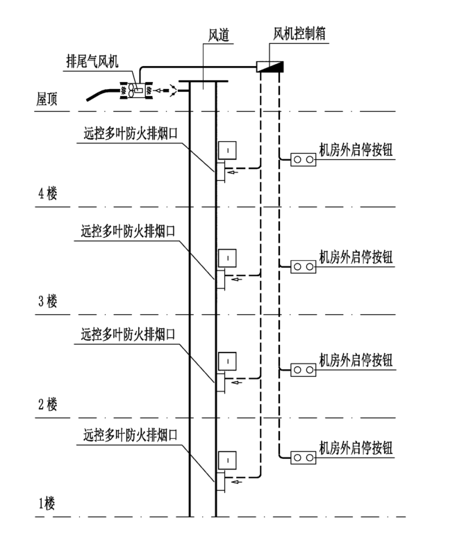
医院感染楼 事故通风管理系统
事故通风管理系统介绍:
事故通风管理系统依据GB50736《民用建筑供暖通风与空气调节设计规范》、GB50370《气体灭火系统设计规范》,对于医院中,重要设备用房,设有气体灭火的房间,有挥发性较强的、有溶煤类气体,有气体泄漏、有爆炸性危险的房间设置事故通风自动控制管理系统。
事故通风管理系统设备要求
有气体灭火等设置事故通风的房间所有风口设SKYC电动密闭间,通风系统设备联动控制启停措施如下:
1)收到火警信号或手动控制器信号后,关闭防护区域的所有风机,联动关闭所有电动密闭阀;
2)气体灭火结束后,打开气体灭火区域送风及下排风口的电动密闭阀,启动事故风机工况运行,联动开启送风机;
3)收到事故等(如氧气、制冷剂)探测器报警信号后,关闭排风机,联动关闭平时排风口的电动密闭阀,打开事故排风口的电动密闭阀,再启动事故风机工况运行,并联动开启送风机;
4)变配电房、发电机房等平时通风运行工况下的电动密闭阀,与排风机联动定时启停,电动密闭阀先于风机开启,后于风机关闭,不同季节采取不同运行策略,实现平时通风系统节能。
了解更多的产品信息和功能参数,请致电我司。
联系人:仵经理
电话:13891834587(微信同号)
Q Q:704151787
竭诚为您提供全面的解决方案和产品报价服务!!!
事故通风管理系统各设备
SKGD手动控制器在医技用房及信息中心等室内、外便于操作的地点分别设置,全中文汉字液晶实时显示风机和风阀的工作状态,现场发出灯光警示,有防误触功能;按预设逻辑一键控制停止平时通风运行工况,立刻开启事故通风工况运行。
SKKD状态采集器用于接收火警或其它事故探测器报警信号,事故通风系统与可燃气体泄漏、事故等探测器联动开启。
SKLX风机控制器设置在风机房或近变频器处,为系统内设备提供工作电源;
SKGL管理主机设置在监控中心或有人值守的场所,进行声光报警并存储故障和动作状态信息,可远程控制风机、风阀开关,平时和事故通风工况切换。
SKGD手动控制器、SKKD状态采集器及SKYC电动密闭阀,均具有唯一地址码,通过WDZBN-RYJS-2X2.5mm2并联(T接)连接至对应SKLX风机控制器。
SKGL空气流向管理主机
SKLX空气流向控制器
SKFL风量/风压探测器
SKJG压差探测器
SKYC/T微压差探测器
SKYC/K联动控制器
SKGD手动控制器
SKFQ电动执行器
SKKD状态采集器
SKYC电动压差动态调节阀
