自清洗过滤器是一种利用滤网直接拦截水中的杂质,去除水体悬浮物、颗粒物,减小浊度,净化水质,减少系统污垢、菌藻、锈蚀等产生,以净化水质及保护系统其他设备正常工作的精密设备,水由进水口进入自清洗过滤器机体, 由于智能化(PLC、PAC)设计,系统可自动识别杂质沉积程度,给排污阀信号自动全排污。

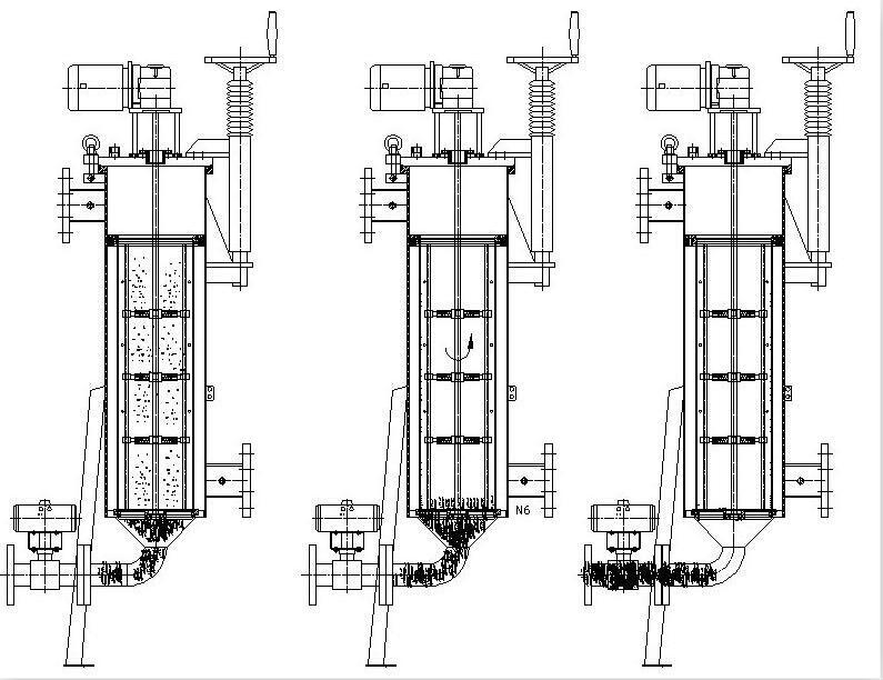
自清洗过滤器工作原理:
水由进水口进入过滤器,首先经过粗滤芯组件滤掉较大颗粒的杂质,然后到达细滤网,通过细滤网滤除细小颗粒的杂质后,清水由出水口排出。在过滤过程中,细滤网的内层杂质逐渐堆积,它的内外两侧就形成了一个压差。当这个压差达到预设值时,将开始自动清洗过程:排污阀打开,主管组件的水力马达室和水力缸释放压力并将水排出;水力马达室及吸污管内的压力大幅下降,由于负压作用,通过吸嘴吸取细滤网内壁的污物,由水力马达流入水力马达室,由排污阀排出,形成一个吸污过程。当水流经水力马达时,带动吸污管进行旋转,由水力缸活塞带动吸污管作轴向运动,吸污器组件通过轴向运动与旋转运动的结合将整个滤网内表面清洗干净。整个清洗过程将持续数十秒。排污阀在清洗结束时关闭,增加的水压会使水力缸活塞回到其初始位置,过滤器开始准备下一个冲洗周期。在清洗过程中,过滤机正常的过滤工作不间断。

自清洗过滤器技术参数
过滤器名称:自清洗过滤器
清洗刷:不锈钢,尼龙刷
排污阀:铸铁,不锈钢
控制方式:压差,时间,手动,PLC控制
壳体材质:不锈钢,碳钢
过滤精度:1-80微米

自清洗过滤器应用领域
1.钢铁:用于原料场、烧结球团厂水处理过滤,高炉、轧机、连铸机等系统冷却水过滤,高压水除磷系统杂质过滤。
2.汽车:涂装生产线,在汽车、拖拉机、摩托车、发动机制造水,处理系统都有广泛应用。
3.发电厂:用于电厂锅炉高纯水制备的精度预处理部分,发电机冷却水、密封用水的过滤,系13-4统用水量特大时可作为旁滤处理使用。
4.石油化工:在循环水场做旁滤处理,可单机或多机型并联主处理,代替滤料过滤,减少滤料过滤负荷,可避免大量的冲洗耗水,节约成本。
5.农业园林及造纸厂:在有喷头、喷嘴系统中,应减少由于杂质所造成的设备堵塞、磨损,因此需要选择高精度、高自动化过滤产品机械、食品或其他:对系统进行自动、精度过滤,用来防止冷却水系统堵塞。
6.矿山:过滤井下喷淋水,保证系统工作正常。
7.给水及污水处理:用于预处理系统中,提高系统运行效率。
8.广泛应用于饮用水处理、建筑循环水处理、工业循环水处理、污水处理、采矿业水处理、高尔夫球场水处理、建筑、钢铁、石油、化工、电子、发电、纺织、造纸、食品、制糖、制药、塑料、汽车行业等领域。