商铺名称:上海昊沃阀门有限公司
联系人:吕经理(先生)
联系手机:
固定电话:
企业邮箱:765761533@qq.com
联系地址:上海市星云经济园区真北路3199号
邮编:201900
联系我时,请说是在五金机电网上看到的,谢谢!
武威市哪里有销售带双接管阻火呼吸阀HXF-II的厂家
HXF-II带双接管阻火呼吸阀产品说明:
装在室内固定储罐顶上,它能对石油储罐内外压差进行自动调节,其机能可靠、不乱,完全符合石油产业部SY7511-87尺度。
合用于储存内点低于28C的甲类油品和闪点低于100C乙油品,如汽苯、苯、煤油、轻柴油、厚油等油品及性质相同的化工产品储罐。

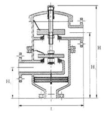
HXF-II带双接管阻火呼吸阀产品尺寸及技术参数:
|
DN |
25 |
50 |
80 |
100 |
150 |
200 |
250 |
|
1" |
2" |
3" |
4" |
6" |
8" |
10" |
|
|
L |
160 |
320 |
450 |
450 |
620 |
750 |
850 |
|
H |
500 |
650 |
750 |
950 |
1100 |
1200 |
1500 |
|
|
|||||||
|
型号 |
HXF-II型 |
规格 |
DN25-DN300 PN0.6-PN2.5 RF |
||||
|
壳体材质 |
AL CS 304 316 316L |
导杆材质 |
AL 304 316 316L |
||||
|
螺帽螺栓 |
CS 304 316 316L |
密封垫片 |
石墨垫片 金属垫片 聚四氟乙烯 |
||||
|
正压阀盘材质 |
CS 304 316 316L/F4 |
负压阀盘材质 |
聚四氟乙烯 F4 |
||||
|
正压阀盘压力 |
+36 mmH2O ~ +1000mmH2O |
负压阀盘压力 |
-25 mmH2O ~ -65mmH2O |
||||
|
压力等级 |
A级 B级 C级 D级 |
环境温度 |
CS:-30℃~+350℃ SS:-80℃~+350℃ |
||||
|
连接方式 |
法兰 螺纹 |
法兰标准 |
JB GB HG ANSI SH JIS |
||||
|
设计制造检测标准 |
SY/T0511-1996 GB5908-86 |
外表处理 |
CS: paint SS:NO Paint |
||||
HXF-II带双接管阻火呼吸阀安装维修保养:
在检查维护重新安装时,应保证阀内各结合面严密配合,阀盘升降灵活。
1) 启用新的阻火呼吸阀时必需盘的防震物。
2) 重新安装压力盘和真空盘时应保证接触面严密,导杆升降灵活。
3) 检查压力阀盘和真空阀盘动作是否灵活,导杆及阀封环接触百有无损伤。
4) 进出口都有塑料的保护盖,避免在运输过程中对法兰造成损坏,安装时请去掉保护盖即可。
5) 要按期(6个月内)检查通气口正、负阀盘是否灵活,阀盘接触面有无损坏,如有损坏应立刻检验。 检验完毕后,一切正常可重新使用。
为了呼吸阀使用安全,应在 3-6 个月内按期将波纹阻火层拆下,清洗干净,保证阻火层上每个孔畅通,防止堵塞,确保安全正常使用。